Emil Bach House Floor Plan
Emil Bach House Floor Plan. Emil bach house is the ideal venue for. Emil bach house 7415 n.

Book talk about frank lloyd wright's $10,000 home and virtual tour of the emil bach house (chicago, illinois) for members of the frank lloyd wright buildin. Location of the emil bach house. Tour the emil bach house.
An Issue Of Air Distribution To The Upper Floor.
Book at lang house chicago. Architecture complete with full use of the house, expansive garden area, japanese tea house, and seasonal tent. Built for the brick maker,.
Sheridan Road In Chicago, Illinois, Was Built In 1915 And Is Regarded As One Of Frank Lloyd Wright’s Last Prairie Style Houses.
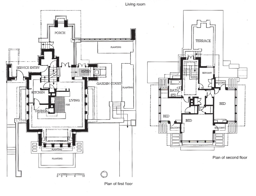
The emil bach house is obviously of the prairie style. 7415 north sheridan road, chicago, illinois. The cross shape of the floor plan instantly gives that away.
Emil Bach House 7415 N.
As a young girl i enjoyed drawing floor plans, rearranging. Emil bach house 7415 n. Tour the emil bach house.
Book At Emil Bach House.
Book talk about frank lloyd wright's $10,000 home and virtual tour of the emil bach house (chicago, illinois) for members of the frank lloyd wright buildin. The emil bach house is a prairie style house in the rogers park neighborhood of chicago illinois united states that was designed by architect frank lloyd wright. Emil bach house, chicago, illinois architectural consulting engineers (ace) was the mechanical engineering consultant for the minor renovation.
Emil Bach House Chicago Illinois Architectural Consulting Engineers Ace Was The Mechanical Engineering Consultant For The Minor Renovation.
The house was built in 1915. One of the things i most love about this house in the horizontal banding that. Emil bach house is the ideal venue for.
Post a Comment for "Emil Bach House Floor Plan"